Ventilatierooster
24 uur per dag ventileren
Goed ventileren is enorm belangrijk. Niet alleen omdat frisse en schone lucht in huis prettig is en het huis in betere staat houdt, maar ook omdat het gezond is. Dagelijks vervuilen we de lucht binnenshuis met o.a. koken, douchen, stoken en roken.
VDB Kunststofkozijnen maakt gebruik van zelfregelende ventilatieroosters van Duco. Bij deze ventilatieroosters wordt de luchtstroom op een natuurlijke manier toegvoerd door middel van een regelbare klep enerzijds en een zelfregelende klep anderzijds. De zelfregelende klep werkt mechanisch en zorgt ervoor dat het ventilatievolume gelijk blijft bij toenemende wind. Dit voorkomt hinderlijke tocht.
De ventilatieroosters van Duco dragen bij aan een gezond binnenklimaat.
Ventilatieroosters kunnen toegepast worden in ramen, achterdeuren, draaikiepdeuren en schuifpuien. Bekijk onderstaande linkjes voor voorbeelden.
Ventilatierooster in een raam
Ventilatierooster in een achterdeur
Ventilatierooster in een draaikiepdeur
Ventilatierooster in een schuifpui
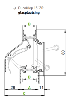
DucoKlep 15 'ZR'
VDB Kunststofkozijnen maakt gebruik van het type ventilatierooster DucoKlep 15 'ZR'. DucoKlep 15 'ZR'is een zelfregelend klepventilatierooster met een geheel vlak binnenrooster. Daardoor is het bijzonder geschikt voor toepassing in het vaste deel van een schuifraam. Het rooster kan optioneel voorzien worden van een duimhendel.
De ventilatieroosters worden standaard in de kleur van het kozijn of de raamvleugel geleverd.

Goed ventileren is enorm belangrijk. Niet alleen omdat frisse en schone lucht in huis prettig is en het huis in betere staat houdt, maar ook omdat het gezond is. Dagelijks vervuilen we de lucht binnenshuis met o.a. koken, douchen, stoken en roken.
Ventilatierooster
VDB Kunststofkozijnen maakt gebruik van zelfregelende ventilatieroosters van Duco. Bij deze ventilatieroosters wordt de luchtstroom op een natuurlijke manier toegvoerd door middel van een regelbare klep enerzijds en een zelfregelende klep anderzijds. De zelfregelende klep werkt mechanisch en zorgt ervoor dat het ventilatievolume gelijk blijft bij toenemende wind. Dit voorkomt hinderlijke tocht. De ventilatieroosters van Duco dragen bij aan een gezond binnenklimaat.
Ventilatieroosters kunnen toegepast worden in ramen, achterdeuren, draaikiepdeuren en schuifpuien. Bekijk onderstaande linkjes voor voorbeelden.
Ventilatierooster in een raam
Ventilatierooster in een achterdeur
Ventilatierooster in een draaikiepdeur
Ventilatierooster in een schuifpui
DucoKlep 15 'ZR'
VDB Kunststofkozijnen maakt gebruik van het type ventilatierooster DucoKlep 15 'ZR'. DucoKlep 15 'ZR'is een zelfregelend klepventilatierooster met een geheel vlak binnenrooster. Daardoor is het bijzonder geschikt voor toepassing in het vaste deel van een schuifraam. Het rooster kan optioneel voorzien worden van een duimhendel.
De ventilatieroosters worden standaard in de kleur van het kozijn of de raamvleugel geleverd.
